
Beach House Croatia
GOOD Bye murter ;-(
TRAURIG, ABER WAHR.
WIR SIND FASSUNGSLOS!!!!
Es tut uns von Herzen weh und wir sind noch immer fassungslos.
Leider sind wir in einen fast schon filmreifen Betrugsfall verwickelt worden und unser geliebtes Beachhouse in Murter wurde von der kroatischen Regierung ohne Vorkenntnisse abgerissen.
Wir sind noch immer sprachlos, denn selbst die Baubehörde in Murter ist in diesen Skandal verwickelt.
Wir möchten uns bei all unseren treuen Stammgästen bedanken.
Sehr gerne hätten wir das Ferienhaus weiter vermietet.
So schnell können Träume platzen!
Ruhig. Entschleunigend. Heaven on Earth ...
... so lässt sich das neue und exklusive Beach Boutique Resort auf der Halbinsel von Murter in Kroatien (Region Dalmatien) wohl am besten beschreiben.
Das Boutique Resort ist ein brandneues und hochwertiges Resort mit 10 exklusiven ökologischen Architekten Beach Villas - direkt am Meer gelegen. Perfekt, um den stressigen Alltag hinter sich zu lassen und unbeschwert Urlaub zu machen.
Das Resort befindet sich auf der Halbinsel Murter, das sich in einer sehr beliebten touristischen Gegend in Kroatien in der Nähe von Zadar befindet. Das Resort ist eine Design-Kollaboration innovativer Architekten.
WELCOME TO THE BEACH ...
Genau das dachten wir, als wir auf Murter stießen.
Ideal gelegen an einer atemberaubenden Küste in der Nähe von Pakostane – nur eine halbe Autostunde vom Flughafen Zadar in Kroatien entfernt!
Entspanne Dich in einer luxuriösen Eco-Suite.
Stelle Dir vor:
… ein gemütliches Strandhaus direkt am Meer eines der versteckten Juwelen Kroatiens
… einer idyllischen vorgelagerten kleine Insel
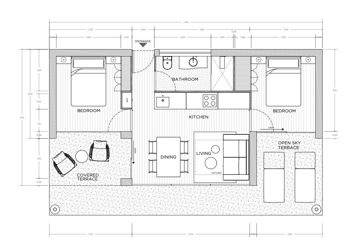
… wunderschönes nordisches Fichtenholz, zwei Schlafzimmer mit bequemen Doppelbetten und entzückenden Memory Foam-Matratzen
… ein wunderschönes Wohnzimmer mit einer hochmodernen Küche und einem Badezimmer
Oh, vergessen wir nicht die große Außenterrasse mit den zusätzlichen Loungebereich für einen atemberaubenden Blick auf den Sonnenauf- oder Sonnenuntergang.
Du liebst es frischen Fisch oder Fleisch zu grillen? Kein Problem! Es steht ein Gasgrill zur Verfügung.
Zu heiß? Dann ab ins kühle Nass.
WE ARE ECO FRIENDLY!
Das Boutique Resort ist ein brandneues und hochwertiges Resort mit 9 exklusiven ökologischen Beach Villas - direkt am Meer gelegen.
Perfekt, um den stressigen Alltag hinter sich zu lassen und unbeschwerten Urlaub zu genießen.
Das Resort befindet sich auf der Halbinsel Murter, das sich in einer sehr beliebten Gegend in Kroatien in der Nähe von Zadar befindet. Das Resort ist eine Design-Kollaboration innovativer Architekten.
since 2022
40 Meter zum Meer
Regionale Küche
Facts & Figures
WE LOVE IT
Direkte Meereslage
nur 60 Meter trennt Dich vom Haus zum Meer
Regionale kroatische Küche
Nur wenige Gehminuten vom Resort befindet sich das kleine Fischerdorf mit zahlreichen Restaurants
100 % bio
Das Haus wurde zu 100% aus erneuerbaren Materialien erstellt.
Airport Zadar
in nur ca. 45 Minuten bist Du am Flughafen von Zadar.
Zahlreiche Aktivitäten
Die Region hat so viele Aktivitäten zu bieten ...
mit dem Boot, Fahrrad, Ausflüge, Sehenswürdigkeiten, etc.
Eco Friendly
z.B. Meerwasser für Toiletten und die Installation von Wasserhähnen und Duschköpfen mit geringem Durchfluss
Die Region
Unberührte Natur
Die Umgebung ist voll von unberührten Buchten und perlweißen Stränden und türkisfarbenem Wasser.
Du liebst kleine Städtetrips? Dann besuche Pakoštane, Biograd Na Moru, Zadar oder Šibenik. Wenn Du die Gegend erkunden möchtest, werden Dir der Naturpark Vransko Jezero, der Nationalpark Kornati, der Fluss Krka oder die erstaunlichen Wasserfälle von Paklenica zweifellos den Atem rauben.
Wusstest Du, dass es in Zadar eine Meeresorgel des Architekten Nikola Basic gibt, die durch die Wasserwellen, die am Ufer ankommen, Klänge erzeugt? Sein Design wurde mehrfach ausgezeichnet und es ist ein Muss!
Unser größtes Problem war, dass wir am Ende des Urlaubs wieder abreisen mussten.

























